Officine e deposito Fart
Riazzino
1° rango
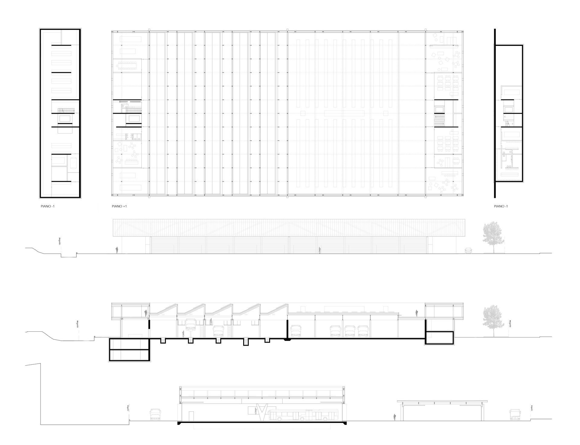
Il progetto consiste in un gesto architettonico primordiale e unitario: un tetto a coprire il vuoto dello spazio principale, a sua volta suddiviso equamente tra le due funzioni richieste, officina e deposito.

Progetto
Il tetto è sorretto e delimitato dalle due vie che affiancano il sedime - ferrovia e strada Cantonale - dagli spazi di supporto che toccano terra e offrono le entrate pedonali agli spazi. La copertura è unitaria, con una struttura e un rivestimento continuo ma rivela, attraverso le trasparenze, un profilo generato dall’articolazione della sezione che il programma suggerisce. Anche il toccare terra e l’immergersi nel suolo risolvono con lo stesso stratagemma le differenze d’impostazione tra i vari ambiti, mantenendo un aspetto omogeneo verso l’esterno.

oggetto
ristrutturazione e ampliamento scuole elementari
luogo
Riazzino
committente
ferrovie autolinee regionali ticinesi
in collaborazione
canevascini&corecco architetti, lugano
concorso
2022 - 1° premio
ing. civile
vanetta&cairoli, lugano
ing. rvcs
zocchetti sa, lugano
ing. elettrotecnico
tecnoprogetti sa, camorino
ing. ambientale
andrea berrone, lugano
fisico della costruzione
andrea roscetti, lugano
polizia del fuoco
della sicurezza di fabio della casa, agno
Piani





