Abitazione bifamiliare
Losone
Progetto
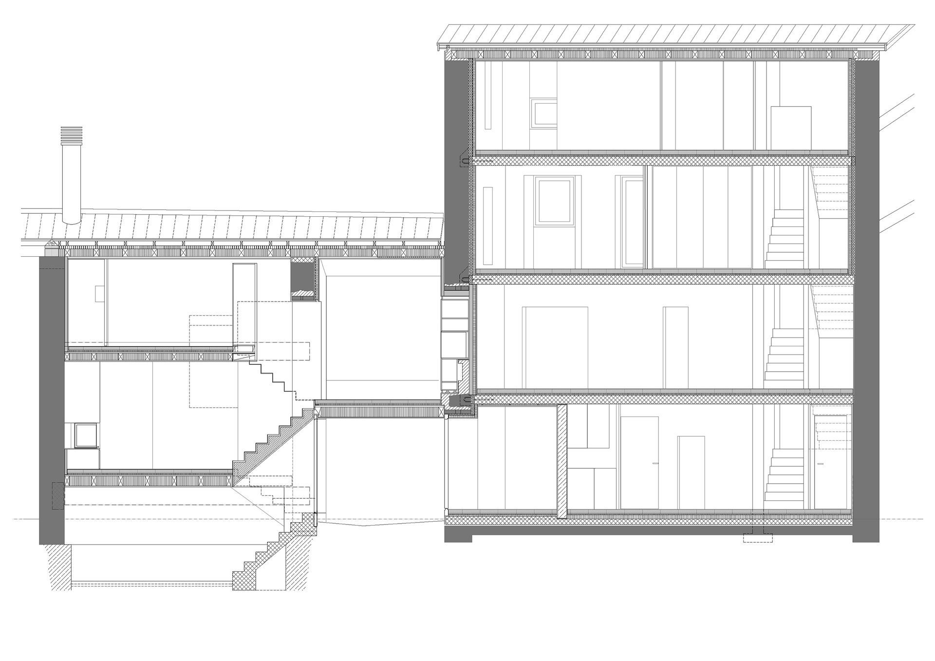
La ristrutturazione nel nucleo di San Giorgio a Losone ha interessato due costruzioni: un’abitazione esistente di quattro piani e una vecchia stalla. Per quanto riguarda l’edificio principale, divenuto abitazione monofamiliare, si è intervenuto internamente proponendo una nuova tipologia e coibentando le pareti perimetrali, ciò che ha permesso, all’esterno di portare alla luce la muratura in pietra originale che è stata valorizzata da un intonaco rasa-pietra; per i prospetti è stato ripristinato il disegno originale con prevalenza dei pieni sui vuoti.
Nell’ex stalla, l’idea architettonica alla base del progetto è caratterizzata dal mantenimento delle murature in pietra e dall’inserimento, al loro interno, di una struttura in legno indipendente dalle aperture esistenti. Questo ampliamento ha permesso di disporre i locali dell’abitazione su tre livelli diversi, connessi fra loro da altrettante scale.

committente
privato
esecuzione
2015
Piani





















